Uncategorized

ADCA LINEAR ELECTRIC ACTUATORS AVF234S and AVM234S

Product foundation and core positioning

Product model: ADCA brand AVM234S, AVF234S linear electric actuators, are valve specific drive equipment produced by VALSTEAM ADCA in accordance with the reasonable engineering specifications of the EU PED pressure equipment directive.

Core advantages: The AVF234S has the characteristics of automatic valve stroke adaptation, precise driving, high energy efficiency, and low operating noise. In addition, it has a fault safety function of spring reset.

Adaptation scenario: Ideal for use in DSH series direct steam jet humidifiers, VCP drain valves for TDS (total dissolved solids) control systems, and can also drive V series ADCATrol control valves. Other valves can be adapted as needed.

Core functional characteristics

Protection and Safety

Protection level up to IP66 (EN 60529), protection category III (IEC 60730), overvoltage category III, pollution level III;

AVF234S exclusive spring reset fault safety: In case of power outage/power interruption, the spring is driven to the fault safety position (with the thrust rod extended), and the spring reset times are * *>40000 times * *;

Under modulation conditions, terminal position sealing is achieved through limit switches.

Control and regulation

Support automatic detection of control signals and equipped with LED signal indicators;

Input types: switch input (2-point/3-point stepper control), analog input (0… 10 V or 4… 20 mA);

The characteristic curve (linear, quadratic, equal percentage) and motor operating time/speed can be adjusted through DIP switches to meet different valve control requirements.

Operation and Instruction

Support manual operation, capable of disconnecting the actuator motor and adapting to on-site emergency operations;

Equipped with mechanical stroke indicator, visually view the valve drive stroke status.

Key technical parameters

1. Basic electrical and power parameters (core distinction AVM234S/AVF234S)

Parameter item AVM234S AVF234S Remarks

Power supply specifications: 230 V 50/60 Hz, 110 V 50/60 Hz, 24 V 50/60 Hz, 24 V DC, compatible with multiple left voltages

Power consumption 10 W (20 VA) (24V AC/DC); 13 W (28 VA) (230V AC) and the left side need to select a transformer according to this value, otherwise it is prone to malfunction

Motor operating speeds of 10 (0.17), 15 (0.25), and 30 (0.50) mm/min (mm/s) are adjusted using the left DIP switch

Spring reset time -15… 30 seconds corresponds to a stroke of 14… 40 mm, independent of the set operating time

Output driving thrust 2.5 kN 2 kN rated thrust

3 o’clock step response time of 200 ms, same as left quick response

Actuator stroke 0… 49 mm 0… 40 mm maximum stroke

The shell material is flame-retardant plastic with the same temperature resistance and fire resistance characteristics as the left

2. Positioner parameters

Control signal 1: 0… 10 V, input impedance Ri=100 k Ω;

Control signal 2:4… 20 mA, input impedance Ri=50 Ω;

Position feedback: 0… 10 V, required load * *>2.5 k Ω * *;

Starting point U0: 0 V or 10 V, control range Δ U: 10 V, switch range Xsh: 300 mV.

Environmental parameters

Remarks on rated values of environmental indicators

Allowable ambient temperature -10… 55 ° C working temperature

Allow ambient humidity<95% RH without condensation

The maximum medium temperature is 130 ° C, and with a high temperature adapter, it can reach 180 ° C/240 ° C

Optional accessories and attachments (including model)

All accessories are specialized models, adapted to different functional expansion requirements. The core accessories are shown in the table below:

Accessory type, model, core parameters/functions

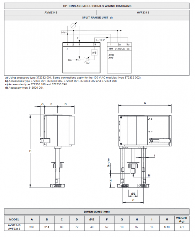
Split range unit 313529 001 adjustment action sequence, installed in an independent junction box

Power supply/activation module 372332/3 001 2/3 point+analog activation, 230 V AC ± 15%, additional power consumption 2 VA

Power supply/activation module 372332 2/3 point+analog activation, 100 V AC ± 15%, additional power consumption 2 VA

Auxiliary conversion contacts 372333 001 12… 250 V AC, minimum 100 mA/12 V, 6 (2) sets of contacts (2 per set)

Auxiliary conversion contacts 372333 002 12… 250 V AC, gold-plated contacts, starting from 1 mA/maximum 30 V, 3 (1) sets of contacts (2 per set)

Potentiometer 372334 001/002/006 24 V/1 W, with resistance values of 2 k Ω/130 Ω/1 k Ω respectively, suitable for closed-loop 3-point stepping

High temperature adapter 372336 180 is suitable for medium temperatures ranging from 130 to 180 ° C

High temperature adapter 372336 240 is suitable for medium temperatures ranging from 180… 240 ° C

Physical specifications

Dimensions (unit: mm): AVM234S/AVF234S universal, A=230, B=314, C=90, D=72, Ø E=40, F=57, G=18, H=37, I=18, thread M10;

Weight: 4.1 kg, both models have the same weight.

Compliance with standards and directives

The product complies with multiple core directives and standards of the European Union, ensuring product compatibility and safety:

EMC Directive 2014/30/EU: Compliant with EN 61000-6-2, EN 61000-6-4;

Low Voltage Directive 2014/35/EU: Complies with EN 60730-1 and EN 60730-2-14;

Pressure Equipment Directive (PED): Produced in accordance with European reasonable engineering standards.

Leave a Reply

Your email address will not be published. Required fields are marked *