EATON XT series stabilizing pump control box
Product basic information and core models
Product positioning: Eaton XT series stabilizing pump control box is an industrial grade control equipment aimed at the global market. It is designed to provide starting, stopping, protection and monitoring functions for stabilizing pump motors, with modular and plug-in design, and easy installation and maintenance.
Core model differentiation
|Model | Starting Method | Core Features | Applicable Motors|
|XTJP | Direct Start (Full Voltage) | The starting current is 600% of the rated full load current, with a simple structure | Suitable for various power motors|
|XTJY | Star Triangle (Y – Δ) Start | When starting, the winding voltage is 58%, the starting torque is 33%, and the starting current is 33%, reducing grid impact | Connect the 6/12 lead Δ to the motor|
Core configuration and hardware design
Display and Control Module
Digital display screen: 1/8 DIN specification, NEMA 4X protection level, 4-digit high brightness red LED, displaying current pressure, high and low pressure setting values, supporting flashing alarm function.
Pressure input: Standard 4-20mA pressure sensor, pressure interface is 1/4 “NPT female (bottom outer side of the chassis), installed according to NFPA 20 standard.
Operation keys: PGM programming key, directional key, supporting parameter settings (start pressure, stop pressure, differential value, etc.).
Power supply and protection components
Power configuration: 120V control power transformer (standard across the range), suitable for wide voltage input scenarios.
Motor protection: Combination motor controller, integrated circuit breaker and overload protection function, simplifies equipment layout.
Safety design: Sealed rotating handle (can be locked in the OFF position) to prevent unauthorized operation; The circuit breaker is mechanically interlocked with the enclosure door, and the door can only be opened when the power is cut off.
Shell and Physical Characteristics
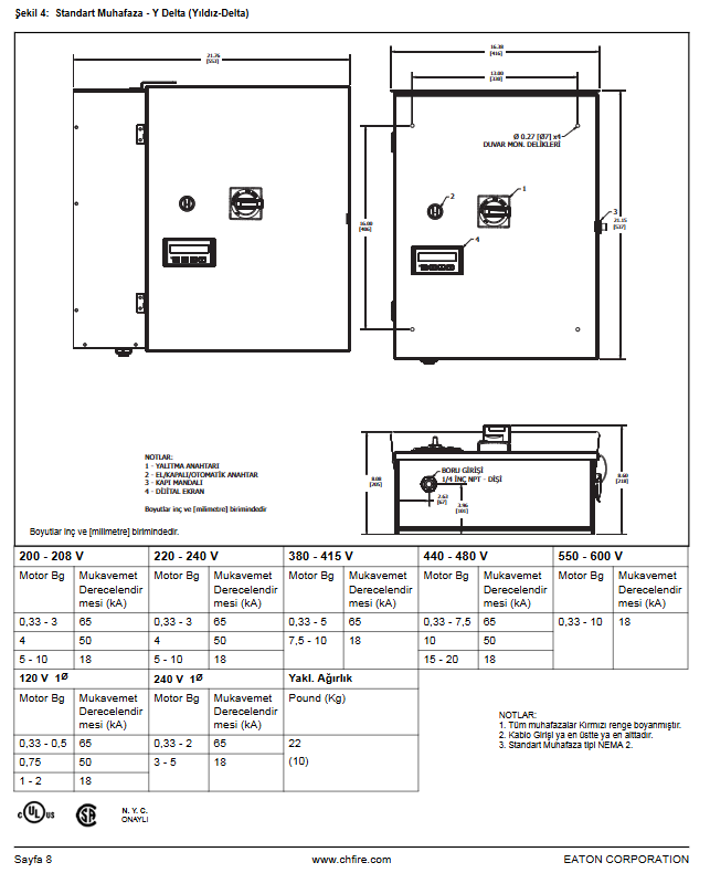
Standard enclosure: NEMA 2 protection level (splash proof), oven baked powder coating, red appearance, wall mounted (requires bolt fixation).
Optional enclosures: NEMA 3R (rainproof), NEMA 4/4X (waterproof, 4X includes stainless steel material), NEMA 12 (dustproof).
Physical dimensions: Depending on the model and configuration, for example, the NEMA 2 standard model measures approximately 16.13 x 10.75 x 8.00 inches (410 x 273 x 203mm) and weighs approximately 22-55Lbs (10-25kg).

Key electrical specifications
Voltage type, voltage range, suitable motor power withstand level (kA)
Single phase 120V 0.33-5Hp 65 (0.33-0.5Hp), 50 (0.75Hp), 18 (1-2Hp)
Single phase 240V 0.33-10Hp 65 (0.33-2Hp), 18 (3-5Hp)
three-phase 200-208V 0.33-15Hp 65(0.33-3Hp)、50(4Hp)、18(5-10Hp)、100(15Hp)
three-phase 220-240V 0.33-40Hp 65(0.33-3Hp)、50(4Hp)、18(5-10Hp)、100(15-40Hp)
Three phase 380-415V 0.33-50Hp 65 (0.33-5Hp), 18 (7.5-20Hp), 100 (25-50Hp)
three-phase 440-480V 0.33-50Hp 65(0.33-7.5Hp)、50(10Hp)、18(15-20Hp)、100(25-50Hp)
Three phase 550-600V 0.33-50Hp 18 (0.33-10Hp), 25 (15-50Hp)
Functional Features and Programming
Basic functions
Pressure control: Based on the 4-20mA sensor signal, the pump body will automatically start and stop according to the set pressure. The starting pressure (1Lo) and stopping pressure (1Lo+HYS) can be adjusted.
Protection functions: overload protection, short circuit protection, motor rotation direction detection (manual verification required).
Status indication: LED displays power, operation, and alarm status, and the digital screen displays real-time pressure data.
Programming and Parameter Setting
Core parameters: input type (default 4-20mA), decimal place, offset value (default 0psi), full-scale value (default 500psi), high and low alarm set points.
Key adjustable items: starting pressure (1Lo), differential value (HYS, minimum 1psi), supporting 1psi incremental adjustment.
Factory default: Most parameters are pre-set (such as HYS=10psi), which can be quickly configured without the need for professional personnel.
Extended functions and accessories
Optional accessories: Running time timer (RPT, three speed adjustment, default 10 minutes), cumulative running schedule, low suction pressure switch and alarm light, space heater (with constant temperature/humidity control).
Signal extension: additional contacts (pump operation/power failure), sequential start function.
Compliance and adaptability
Certification and Compliance: Compliant with UL 508, UL 1053 (Ground Fault), CSA, NYC Building Code, and other standards, meeting the requirements of most industrial scenarios worldwide.
Environmental adaptation: The working environment should avoid water pump seepage and erosion, the pressure sensor pipeline should be free of dirt, and support standard industrial temperature and humidity range (not clearly marked, default industrial grade tolerance).
Language support: The operation interface supports English, French, Spanish, Turkish and other languages, which are suitable for different regions.
Key points for installation and maintenance
Installation requirements
Fixed method: It must be fixed with wall mounted bolts and cannot stand independently. Refer to the corresponding model size diagram to reserve installation space.
Electrical connection: All wiring must comply with national/local electrical regulations, with live parts at a height of ≥ 12 inches (305mm) above ground, and incoming lines marked as L1/L2/L3/grounded.
Pressure connection: Install pressure interface according to NFPA 20 standard to avoid pipeline contamination.
Maintenance and operation
Motor inspection: Before starting, the rotation direction needs to be verified. If it is reversed, adjust the phase sequence of contactors T1-T3 or motor terminals.
Protection settings: The triggering values of overload relays and circuit breakers should match the motor nameplate’s full load current.
Security maintenance: During maintenance, the rotating handle can be locked to avoid accidental operation; Optional pull-out casing, supporting uninterrupted maintenance.
